Sprung zum Inhalt

Bliesheim, freistehendes Haus auf riesigem Westgrundstück!

  • Erfolgreich_vermittelt_durch_Rodenbuesch_Immobilie
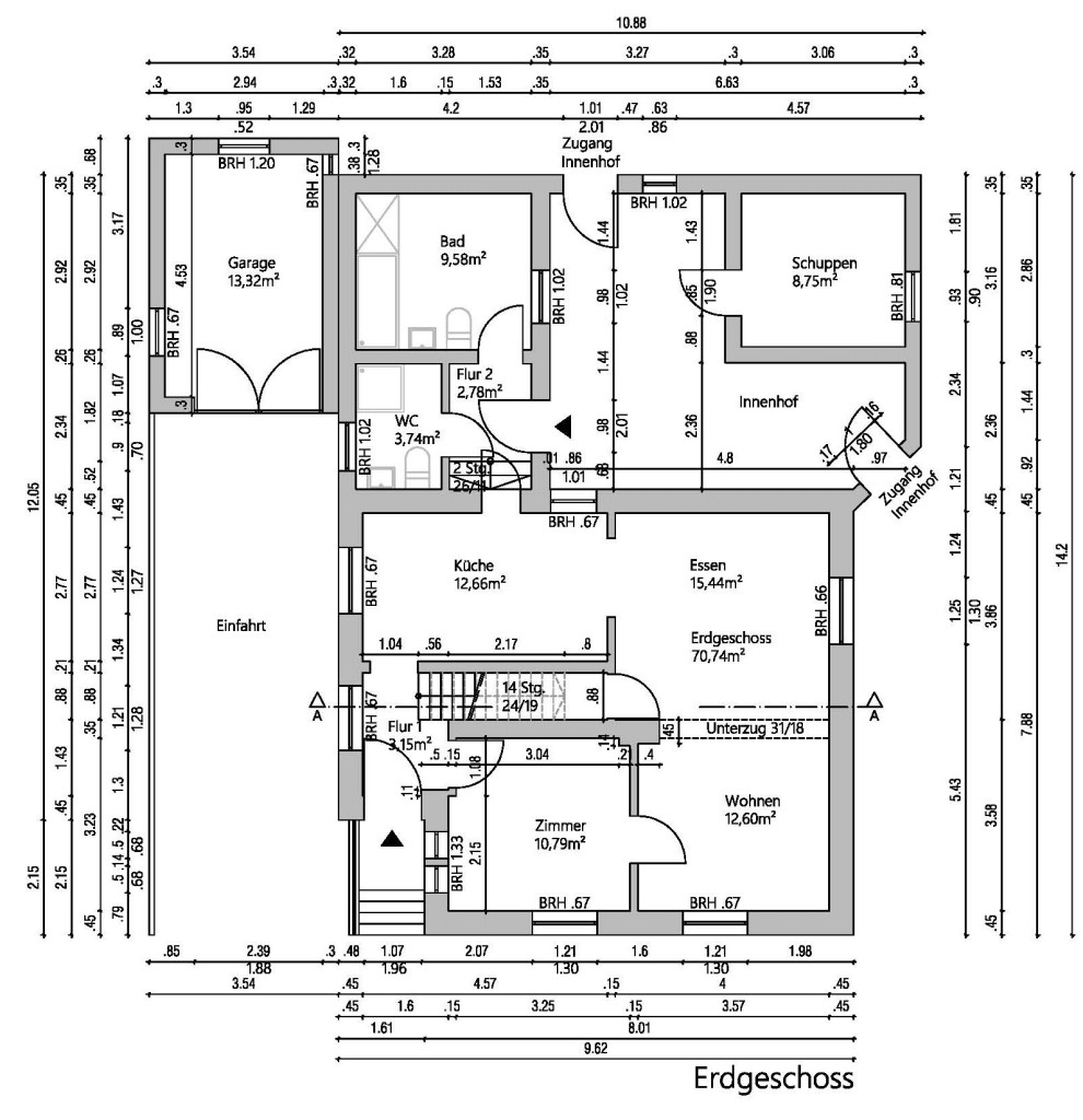
  • Büro/Gast
  • Küche
  • Wohnzimmer
  • Duschbad
  • Wannenbad/Hauswirtschaft
  • Kind 1
  • Schlafzimmer
  • Kind 2
  • Kind 3
  • Erdgeschoss
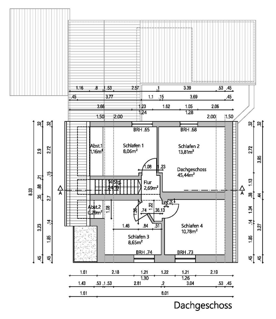
  • Dachgeschoss
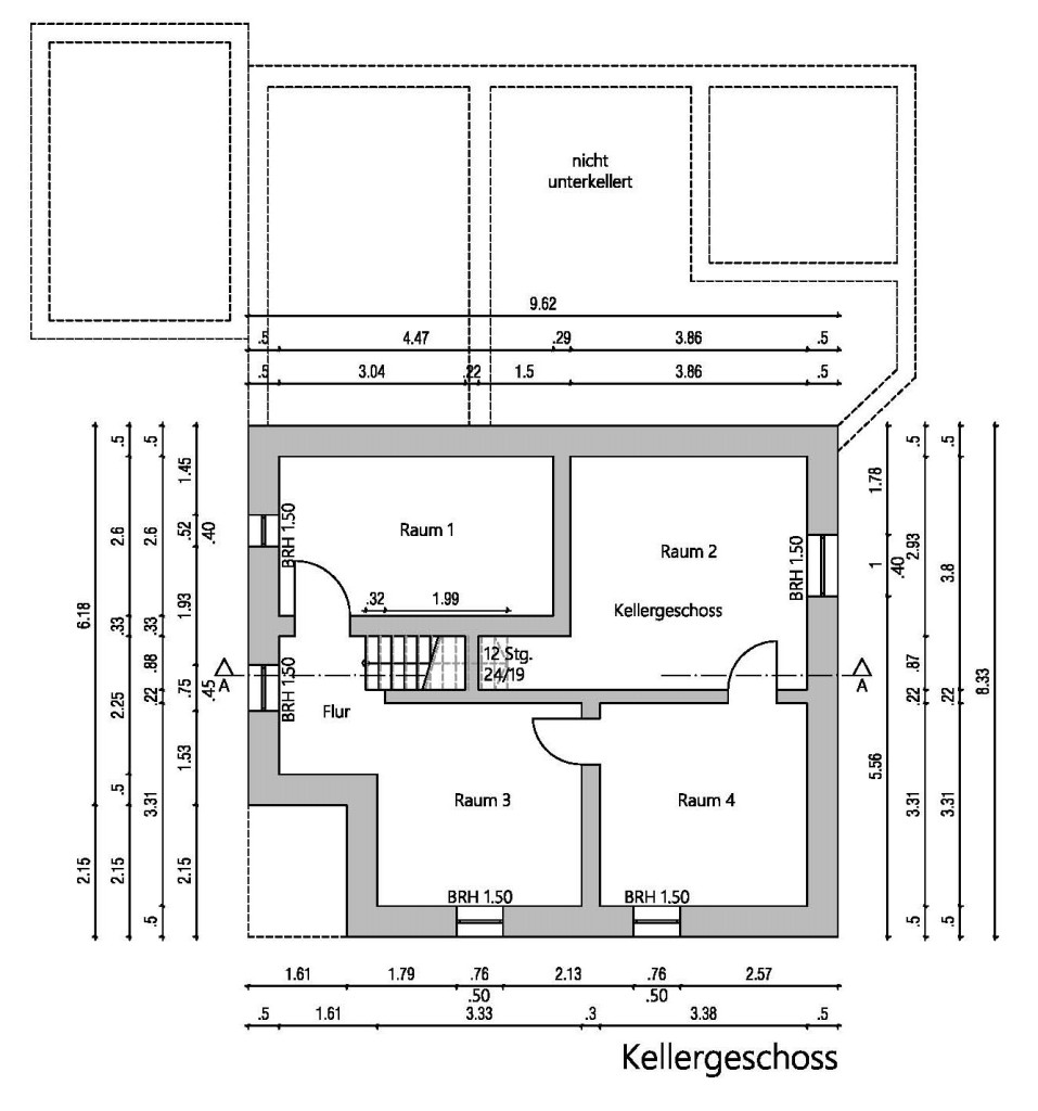
  • Kellergeschoss

Beschreibung

Das hier angebotene Haus wurde etwa im Jahr 1949 errichtet.

Es teilt sich folgendermaßen auf:

Über den Flur erreicht man die Küche, ein Esszimmer sowie das große Wohnzimmer. Im von der Küche erreichbaren Anbau sind das Tageslichtduschbad sowie der Hauswirtschaftsraum mit zusätzlicher Badewanne untergebracht.

Im Obergeschoss befinden sich 4 Schlafzimmer.

Das Haus ist vollunterkellert.

Neben dem Haus befindet sich eine Garage

Lage

Das Haus befindet sich in einem von freistehenden Einfamilienhäusern geprägten Wohngebiet von Erftstadt (Bliesheim). Der pendleroptimale Bahnhof Liblar ist 2,7 km entfernt. Kindergarten und eine Grundschule sind im Ort vorhanden, weiterführende Schulen sind in den Nachbarorten über eine gute Busanbindung erreichbar. Sämtliche Einkaufsmöglichkeiten des täglichen Bedarfs findet man in den Nachbarorten Liblar und Lechenich.

Ausstattung

* doppelverglaste Fenster (Aluminium, Kunststoff) mit Rollläden.
* Gaszentralheizung mit Warmwasserversorgung (Einbau 2015)
* Tageslichtbadezimmer mit Dusche
* Hauswirtschaftsraum mit Badewanne und zusätzlicher Toilette
* Garage
* Nebenräume im Anbau
* Vollkeller (nicht unter dem Anbau)

Sonstiges

Sollten auch Sie Ihre Immobilie verkaufen oder vermieten wollen, so sprechen Sie uns bitte an. Wir beraten Sie professionell und unverbindlich!

Weitere Angebote finden Sie auf unserer Seite www.rodenbuesch.net