Sprung zum Inhalt

Düren, energieeffizientes, geräumiges Stadthaus mit Garten in zentraler Lage!

  • Erfolgreich_vermittelt_durch_Rodenbuesch_Immobilie
  • Wohn-/Essbereich
  • Küche
  • Diele/Garderobe
  • Gäste-WC
  • Kind 1
  • Kind 2
  • modernes Tageslichtbad
  • Studio
  • Rückansicht
  • Garten
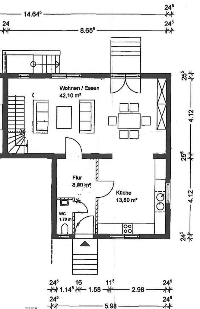
  • Erdgeschoss
  • Obergeschoss
  • Studio

Beschreibung

Das hier angebotene Haus wurde etwa 1960 errichtet und 2010 aufwendig saniert. Dabei wurde insbesondere Wert auf Komfort und eine hohe Energieeffizienz gelegt.

Das Haus teilt sich folgendermaßen auf:

Über den geräumigen Flur erreicht man das Gäste-WC, die Küche sowie den geräumigen, etwa 42 m² großen Wohn-/Essbereich mit offener Küche.

Im ersten Obergeschoss befinden sich 2 Kinderzimmer, das Elternschlafzimmer sowie das moderne Tageslichtbad mit Doppelwaschbecken, Badewanne und separater Dusche.

Das große Studio wird ebenfalls als Kinderzimmer genutzt.

Die Brennwertheizung findet in einem kleinen Abstellraum im Dachboden ihren Platz.

Das Haus ist vollunterkellert. Im Keller befinden sich neben der Waschküche zwei beheizbare Räume die z.Zt. als Büro genutzt werden.
Über eine Treppe erreicht man vom Keller den Garten.

Der pflegeleichte Garten hat zwei Terrassen. Er ist über einen Zugang erreichbar, so dass man Grünschnitt bequem entsorgen kann. Ein Metallgerätehaus birgt Platz für Gartengeräte.

Lage

Das Haus liegt sehr zentral in Düren. Sämtliche Einkaufsmöglichkeiten des täglichen Bedarfs sind fußläufig erreichbar. Schulen, Kindergärten und Ärzte befinden sich im unmittelbaren Umfeld.

Die Buslinie 214 befindet sich wenige Meter vom Haus entfernt.

Ausstattung

Das Haus wurde 2010 nach KFW 70 Standard saniert.

Es hat folgende Ausstattungshighlights:

* Brennwertheizung mit Warmwasserversorgung
* isolierverglaste Kunststofffenster mit elektrischen Rollläden
* Verbundwärmedämmung
* Tageslichtbad mit Badewanne und separater Dusche
* Gäste-WC
* beheizbare Kellerräume
* Bodenbeläge Fliesen/Laminat
* die gezeigte Küche ist bereits im Kaufpreis enthalten

Sonstiges

Die Teilung der Häuser dieses Wohngebietes ist nach WEG erfolgt. Gerne erläutern wir Ihnen die Thematik.

Da wir auf Grund der aktuellen Gesetzeslage dazu verpflichtet sind, Maklerverträge mit Ihnen in Schriftform zu vereinbaren und Sie über Ihr Widerrufsrecht zu informieren, bitten wir Sie Ihre vollständigen Kontaktdaten über das Anfrageformular an uns weiterzuleiten. Sie erhalten dann umgehend die Möglichkeit, über eine barrierefreie Schnittstelle das Exposé abzurufen.

Eine Courtage wird selbstverständlich nur dann fällig, wenn ein notarieller Kaufvertrag über die Immobilie mit Ihnen abgeschlossen wird.

Sollten auch Sie Ihre Immobilie verkaufen oder vermieten wollen, so sprechen Sie uns bitte an. Wir beraten Sie professionell und unverbindlich!

Weitere Angebote finden Sie auf unserer Seite www.rodenbuesch.net