Sprung zum Inhalt

Euskirchen-Frauenberg, 4 Wohnungen als Kapitalanlage, solide vermietet!

  • Erfolgreich_vermittelt_durch_Rodenbuesch_Immobilie
  • Hofansicht
  • Straßenansicht
  • benachbarter Park
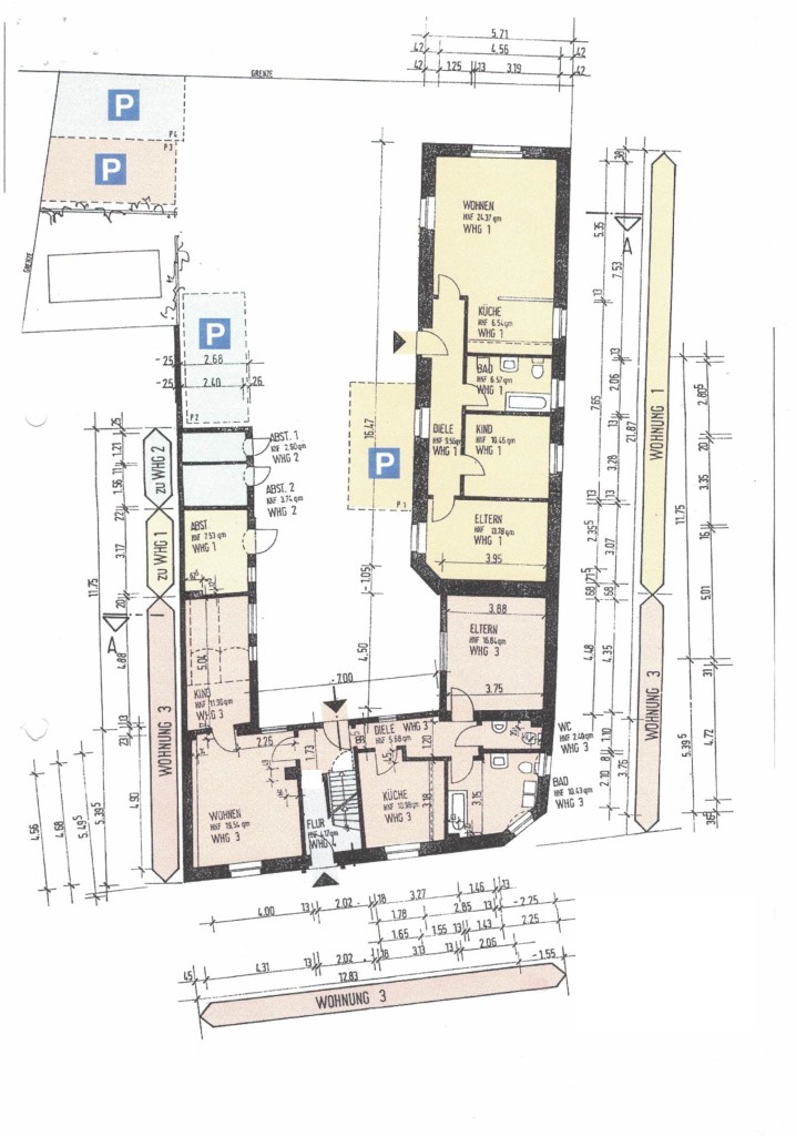
  • Erdgeschoss
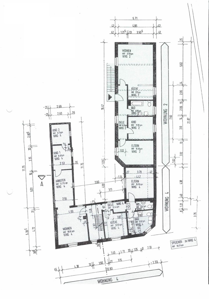
  • Obergeschoss

Beschreibung

Das hier angebotene Objekt besteht aus 4 Eigentumswohnungen in einer geschlossenen Hofanlage (alle Einheiten der Anlage).

Alle Wohnungen sind seit vielen Jahren solide vermietet. Seit mehr als zehn Jahren gibt es keinerlei Mietausfälle.

Die Wohnungsaufteilung entnehmen Sie bitte den Grundrissen.

Lage

Das Mehrfamilienhaus befindet sich in zentraler Lage von Euskirchen-Frauenberg. Das Stadtzentrum von Euskirchen ist in etwa 10 Minuten mit dem Auto zu erreichen, über die Buslinie 807 dauert es etwa 17 Minuten.

Ausstattung

Das Objekt verfügt über eine sehr einfache Ausstattung. Diese sieht folgendermaßen aus:

* Gasthermen mit Warmwasserversorgung je Wohnung (2 aktuell erneuert)
* doppelverglaste Fenster, teilweise mit Rollläden

Sonstiges

Sollten auch Sie Ihre Immobilie verkaufen oder vermieten wollen, so sprechen Sie uns bitte an. Wir beraten Sie professionell und unverbindlich!

Weitere Angebote finden Sie auf unserer Seite www.rodenbuesch.net