Sprung zum Inhalt

Frechen, freistehendes Einfamilienhaus in Topausstattung mit Außenpool, 3 Garagen!

  • Erfolgreich_vermittelt_durch_Rodenbuesch_Immobilie
  • Essbereich
  • Küche
  • Kamin Wohnbereich
  • WC-Wellnessbereich
  • Ruheraum
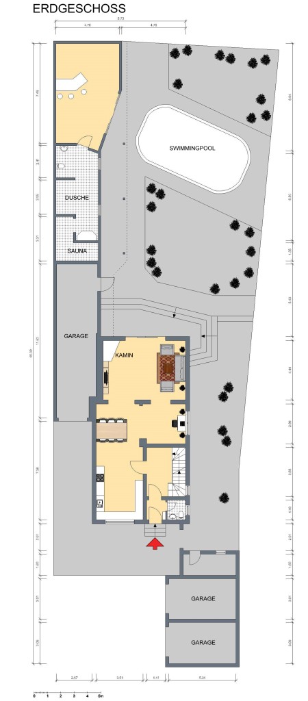
  • Erdgeschoss
  • Obergeschoss
  • Kellergeschoss
  • Pool
  • Terrasse Seite

Beschreibung

Das hier angebotene Haus wurde 2002 kernsaniert und seitdem fortlaufend erweitert. Es teilt sich folgendermaßen auf:

Erdgeschoss/Außenbereich/Wellness:

Über den Hauseingang betritt man die Diele mit Zugang zum Gäste-WC, sowie zum großen, offenen Wohn-/Essbereich mit Küche. Im Wohnzimmer sorgt unabhängig von der solarunterstützten Brennwertheizung ein 11 kw Kaminofen für wohlige Wärme, der sowohl offen, als auch geschlossen betrieben werden kann. Über eine große Schiebeanlage erreicht man den Garten mit überdachtem Zugang zum ca. 55 m² großen Party- und Wellnessbereich, der keine Wünsche übrig lässt. Neben einem luxuriösen Badbereich (u.A. Duravit Phillipe Starck I) mit Schwalldusche, WC und infrarotgesteuertem Urinal befindet sich eine Lichteffekt-Sauna mit 9 kw Ofen sowie einem Hansgrohe Dampfbad mit integrierter Kopfbrause und Seitenbrausen für schottische Wechselduschen. Ein Ruheraum mit Thekenbereich und zusätzlichem 7-kw Dauerbrandofen runden das Wellnesskonzept ab.

Im Außenbereich befindet sich der große Pool mit elektronischer Wasseraufbereitung für Chlor und PH-minus, der ebenfalls über die Solaranlage beheizt werden kann. Eine große, mit Glas überdachte Terrasse unmittelbar am Pool bringt auch bei einem plötzlich einsetzenden Regen die Poolparty nicht zum Erliegen.

Obergeschoss:

Von der Diele erreicht man über eine schicke Treppe mit massiven Buchestufen sowie Setzstufen aus Edelstahl erreicht man das Obergeschoss. Hier befinden sich 2 Kinderzimmer, sowie das große Elternschlafzimmer, welches über eine Ankleide mit 2 großen Einbauschränken erreichbar ist. Das Badezimmer verfügt über eine Hansgrohe Whirlpoolwanne sowie Keramik der Serie Duravit Vero.

Kellergeschoss:

Im Keller sind neben dem Hausanschlussraum ein Lagerkeller, ein kleiner Wellnessbereich mit Dusche sowie der Heizkeller mit den Waschmaschinenanschluss und der Wasserenthärtungsanlage untergebracht.

Zum Haus gehören insgesamt 3 Garagen.

Lage

Das angebotene Haus liegt im Frechener Stadtteil Habbelrath.

Die Stadt Frechen liegt im Westen des Rhein-Erft-Kreises rund 12 km vom Kölner Zentrum entfernt. Mit aktuell rund 49.900 Einwohnern zählt sie zu den sogenannten Mittelstädten. Die sehr guten öffentlichen Verkehrsanbindungen über die KVB-Linie 7, die S-Bahn-Linie S12 und zur Hauptverkehrszeit auch die S-Bahn-Linie S13 ermöglichen ein rasches Vorankommen in alle Richtungen - sogar direkt zum Flughafen Köln/Bonn. Die Autobahn A1 ist über eine eigene Anschlussstelle schnell erreicht. Ein weiterer Teilanschluss an die A4 (von und nach Aachen) ist bereits vorhanden, ein Anschluss von und nach Köln ist zudem in Planung. Zentral und doch ruhig gelegen verfügt Frechen mit zahlreichen Geschäften, Kindergärten sowie sämtlichen Schulformen über eine ausgezeichnete Infrastruktur. Zudem locken ausgezeichnete Freizeit- und Naherholungsmöglichkeiten. Während des ganzen Jahres laden verschiedene Konzerte, Theateraufführungen oder Ausstellungen ein und sorgen für Unterhaltung bei Groß und Klein. Durch die attraktive Lage und den hohen Freizeitwert steht Frechen für eine wachsende Stadt mit Wohnqualität.

Ausstattung

Das umfangreich und hochwertig modernisierte Haus verfügt über folgende Ausstattungsmerkmale:

Energieeffizienz:

* Verbundwärmedämmung
* isolierverglaste Kunststofffenster mit Rollläden
* solarunterstützte Brennwerttherme mit Warmwasserversorgung (40m² Solarfläche für Warmwasser und Heizungsunterstützung)
* Kaminöfen in Wohnzimmer und Partyraum

Wellness/Poolanlage:

* solarbeheizter Außenpool mit elektronischer Wasseraufbereitung für Chlor und PH-minus
* Lichteffekt-Sauna
* Hansgrohe Dampfdusche mit schottischer Wechseldusche
* Badbereich Waschtisch Duravit Phillipe Starck I
* Urinal mit Infrarotsteuerung
* Barbereich mit Edelstahltheke
* Dauerbrandofen 7 kw im Thekenbereich
* 33 m² große, glasüberdachte Bangkirai-Terrasse am Pool
* Hansgrohe Whirlpoolwanne
* kompletter Wellnessbereich mit hochwertigen Mosaikfliesen ausgelegt

Innenausstattung

* hochwertige Fliesen/Teppich und- Laminatböden
* aufwendige Malerarbeiten im Deckenbereich
* Keller komplett gefliest
* großzügiger Ankleidebereich im Flur zum Schlafzimmer
* die Küche ist im Kaufpreis bereits enthalten

Zum Haus gehören 3 Garagen mit elektrisch bedienbaren Sektionaltoren.

Weitere Parkmöglichkeiten stehen auf dem Grundstück zur Verfügung.


Sonstiges

Sollten auch Sie Ihre Immobilie verkaufen oder vermieten wollen, so sprechen Sie uns bitte an. Wir beraten Sie professionell und unverbindlich!

Weitere Angebote finden Sie auf unserer Seite www.rodenbuesch.net