Sprung zum Inhalt

Gymnich, geräumiges Zweifamilienhaus mit Großgarage auf tollem Grundstück

  • Erfolgreich_vermittelt_durch_Rodenbuesch_Immobilie
  • Wohnzimmer
  • Küche
  • Tageslichtbad
  • Hobbyraum
  • Partykeller
  • Studio
  • Tageslichtbad Studio
  • Gartenansicht
  • Großgarage mit Kellerzugang
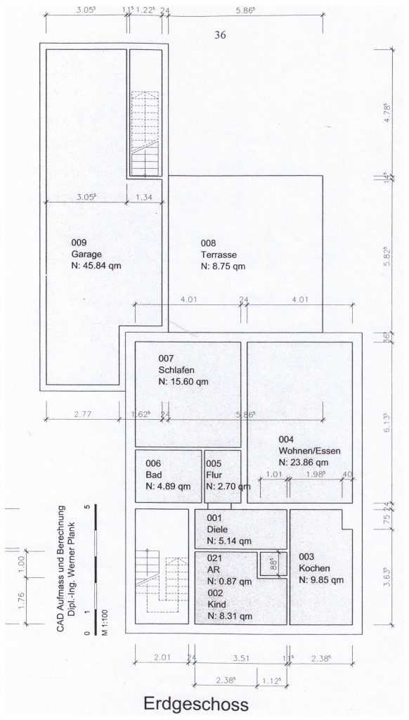
  • Erdgeschoss
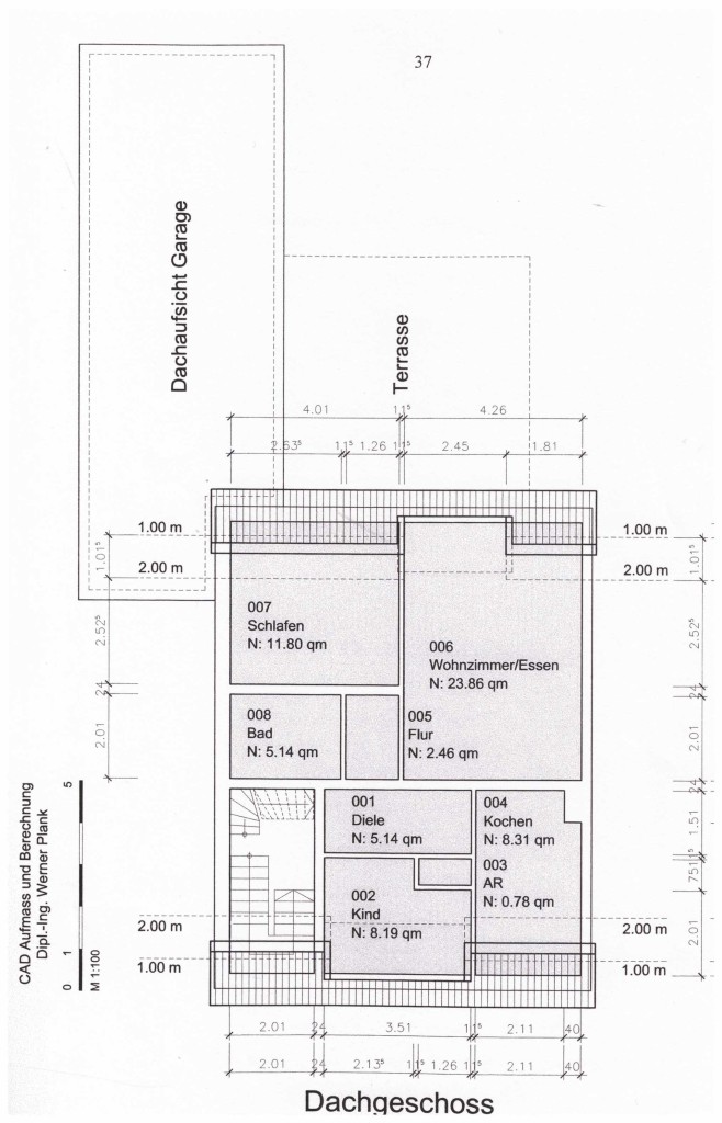
  • Dachgeschoss
  • Spitzboden

Beschreibung

Das hier angebotene Haus wurde im Jahre 1975 auf einem 691 m² großen Grundstück errichtet. Es teilt sich folgendermaßen auf:

Die Erdgeschosswohnung besteht aus Kinderzimmer, Schlafzimmer, Tageslichtbad, Küche und Wohnzimmer mit Zugang zur großen Terrasse.

Im ersten Obergeschoss befindet sich eine Zweizimmerwohnung, die ohne weiteres in eine Dreizimmerwohnung umgewandelt werden kann.

Der Spitzboden ist ausgebaut. Hier befindet sich ein kleines Dachstudio mit separatem Duschbad.

Im Keller befindet sich ein Wellnessbereich mit Sauna sowie ein sehr großer Hobbyraum mit Tageslicht. Weiterhin sind hier eine Kellerbar, der Waschkeller sowie der Heizungsraum untergebracht. Von der großen Doppelgarage hat man direkten Zugang zum Keller.

Lage

Das Haus liegt in einem von Einfamilienhäusern geprägten Wohngebiet von Gymnich. Sämtliche Einkaufsmöglichkeiten des täglichen Bedarfes befinden sich im Ort. Die Autobahn A61 sowie die A1 sind in wenigen Autominuten erreichbar. Die Fahrzeit nach Köln beträgt ca. 25 Autominuten.

Ausstattung

*doppelverglaste Aluminiumfenster mit Rollläden (außer Dachfenster)
* Ölzentralheizung mit Warmwasserversorgung (Einbau 2007 Brenner, 2009 Wärmetauscher)
* 3 Tageslichtbäder
* Bodenbeläge Fliesen/Parkett/Teppich/Laminat
* großer Keller mit Wellnessbereich
* Kaminofen
* große Doppelgarage mit Zugang zum Keller und elektrischem Tor
* große Einfahrt mit weiteren Stellflächen
* Terrasse mit großer, elektrischer Markise
* Zisterne zur Regenwassernutzung

Sonstiges

Sollten auch Sie Ihre Immobilie verkaufen oder vermieten wollen, so sprechen Sie uns bitte an. Wir beraten Sie professionell und unverbindlich!

Weitere Angebote finden Sie auf unserer Seite www.rodenbuesch.net