Sprung zum Inhalt

Nörvenich, junges, geräumiges Haus auf riesigem Grundstück!

  • Erfolgreich_vermittelt_durch_Rodenbuesch_Immobilie
  • Wohn-/Essbereich
  • Küche
  • Gäste-WC
  • Diele mit Garderobenbereich
  • Treppe zum Obergeschoss
  • Tageslichtbad
  • Wanne Tageslichtbad
  • Kind-/Büro 1
  • Kind-/Gast 2
  • Kind/Gast 3
  • Garten
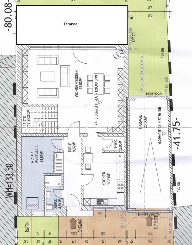
  • Erdgeschoss
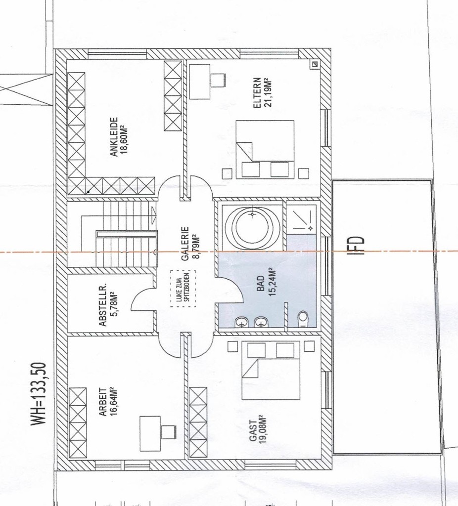
  • Obergeschoss

Beschreibung

Das hier angebotene Haus wurde 2011 auf einem 1.032 m² großen Grundstück erstellt.

Es teilt sich folgendermaßen auf:

Über den Hauseingang erreicht man den Flur zum Gäste-WC (mit Dusche) zur geräumigen Küche mit separatem Abstellraum, zum Garderobenbereich, zum Hauswirtschaftsraum sowie zum großen Wohn-/Essbereich. Die Terrasse mit Blick auf den weitläufigen Garten ist über jeweils über zwei große Hebe- /Schiebefenster erreichbar.

Über eine dunkle, elegante Holztreppe erreicht man den oberen Wohnbereich. Hier befinden sich neben einem großen, praktischen Abstellraum, das geräumige Tageslichtbad mit Badewanne und separater Dusche sowie 4 große Schlaf- oder Kinderzimmer.

Der geräumige Dachboden ist über eine Luke erreichbar, und bietet weiteren Stauraum. Hier ist auch die Wärmepumpe untergebracht.

Lage

Das Haus befindet sich in einem Nörvenicher Ortsteil. Sämtliche Einkaufsmöglichkeiten des täglichen Bedarfs findet man im benachbarten Hauptort Nörvenich.

Ausstattung

* Heizung über Wärmepumpe (Fußbodenheizung)
* doppelverglaste Kunststofffenster mit elektrischen Rollläden
* Fliesen in allen Räumen
* Tageslichtbadezimmer mit großer Badewanne und separater Dusche
* Gäste-WC mit Dusche
* großer Vorplatz mit Parkfläche für mehrere PKW
* Garage mit Doppeltor (ein Tor vorne, ein Tor zum Garten)

Auf dem Dach befindet sich eine Photovoltaikanlage mit 20,16 kWp, die 2022 einen Nettoertrag von rund 4.300,-- EUR erwirtschaftet hat. Diese wird für zusätzlich 15.000,-- EUR verkauft.

Sonstiges

Das Objekt ist aktuell vermietet. Der Mieter ist nach Abstimmung bereit, das Haus geräumt zu übergeben.